รายละเอียดอาคาร

โรงงาน
โรงงาน
โรงงาน
โรงงาน
โรงงาน
โรงงาน
โรงงาน
โรงงาน
โรงงาน
โรงงาน
โรงงาน
โรงงาน
ชื่อ
91
ค่าเช่าต่อเดือน
50,000
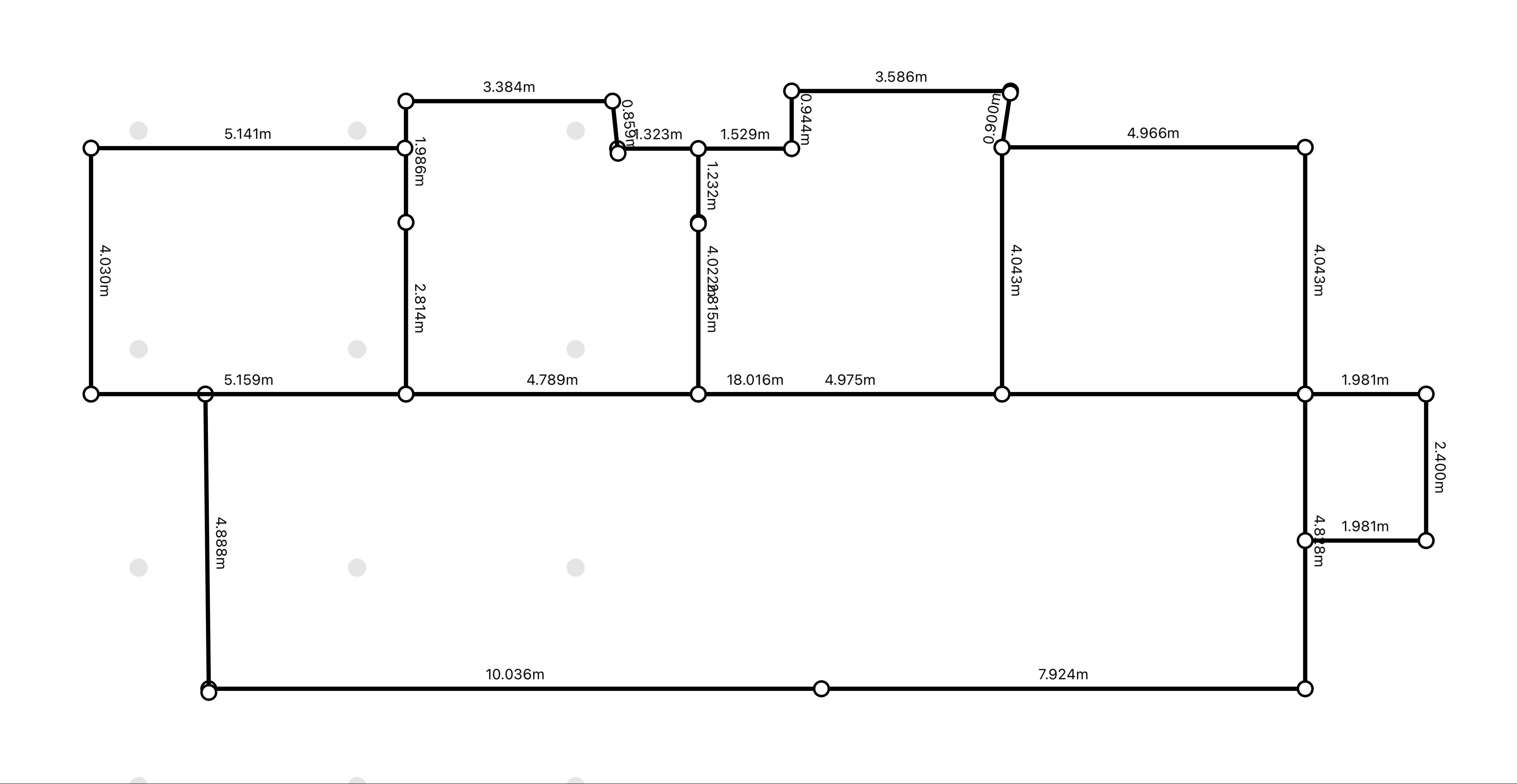
ขนาด
194 ตร.ว.
ที่ตั้ง
20 ซอยเทียนทะเล 30 ถนนบางขุนเทียน-ชายทะเล แขวงท่าข้าม เขตบางขุนเทียน กรุงเทพมหานคร 10150
ประเภทอาคาร
โรงงานพร้อมสำนักงาน 2 ชั้น
ทิศ
ตะวันออกฉียงใต้(SE)
ขนาดอาคาร
21.5*27*8 ม.
ขนาดโรงงาน
300 ตรม
ขนาดสำนักงาน
307 ตร.ม.
วัสดุหลังคา
เมทัลชีท
วัสดุผนัง
ก่ออิฐฉาบเรียบ
ความสามมารถในการรับน้ำหนักของพื้น
2 ตัน/ตรม.
ประเภทไฟฟ้า
3 เฟส
ปริมาณไฟฟ้า
30(100)
ขนาดท่อประปา
6 หุน
ความสูงประตูม้วนไฟฟ้า
ประตูม้วนไฟฟ้า
จำนวนห้องพัก/ออฟฟิศ
6
จำนวนห้องน้ำ
5
ระบบบำบัดน้ำเสีย
ไม่มี
ผังเมือง
สีเขียว
ขนาดถนน หลัก/ซอย
กว้าง 8 ม.
ค่าส่วนกลาง
ไม่มี
ค่าขยะ
มี
ที่ตั้ง