- ชื่อ
- 92
- ค่าเช่าต่อเดือน
- 60,000
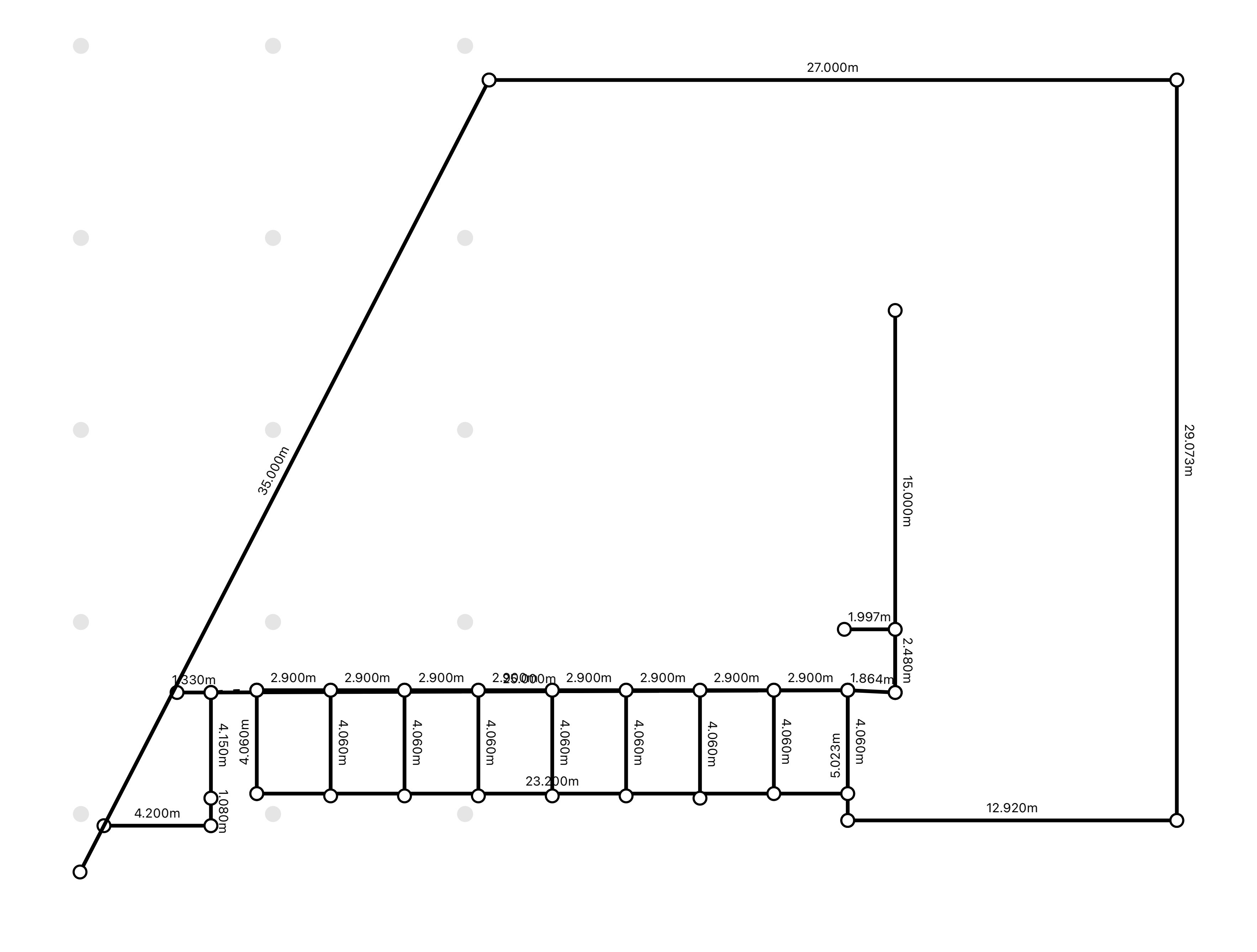
- ขนาด
- 282.3 ตร.ว.
- ที่ตั้ง
- 20 /1 ซอยเทียนทะเล 30 ถนนบางขุนเทียน-ชายทะเล แขวงท่าข้าม เขตบางขุนเทียน กรุงเทพมหานคร 10150
- ประเภทอาคาร
- โรงงานพร้อมอาคารพักอาศัก 2 ชั้น 16 ห้อง
- ทิศ
- ตะวันออกฉียงใต้(SE)
- ขนาดอาคาร
- 42*27*29*35 ม.
- ขนาดโรงงาน
- 800 ตรม
- ขนาดสำนักงาน
- 20 ตร.ม.
- วัสดุหลังคา
- เมทัลชีท
- วัสดุผนัง
- ก่ออิฐฉาบเรียบ
- ความสามมารถในการรับน้ำหนักของพื้น
- 2 ตัน/ตรม.
- ประเภทไฟฟ้า
- 3 เฟส
- ปริมาณไฟฟ้า
- 30(100)
- ขนาดท่อประปา
- 6 หุน
- ความสูงประตูม้วนไฟฟ้า
- ประตูรั้ว
- จำนวนห้องพัก/ออฟฟิศ
- 17
- จำนวนห้องน้ำ
- 9
- ระบบบำบัดน้ำเสีย
- ไม่มี
- ผังเมือง
- สีเขียว
- ขนาดถนน หลัก/ซอย
- กว้าง 8 ม.
- ค่าส่วนกลาง
- ไม่มี
- ค่าขยะ
- มี
- ที่ตั้ง